Rif. immobile : T MI
Vendita 160.000€ - Terreni edificabili
Proponiamo in vendita un ampio lotto edificabile di 1.829 mq situato in posizione strategica a Mirano verso Santa Maria di Sala.
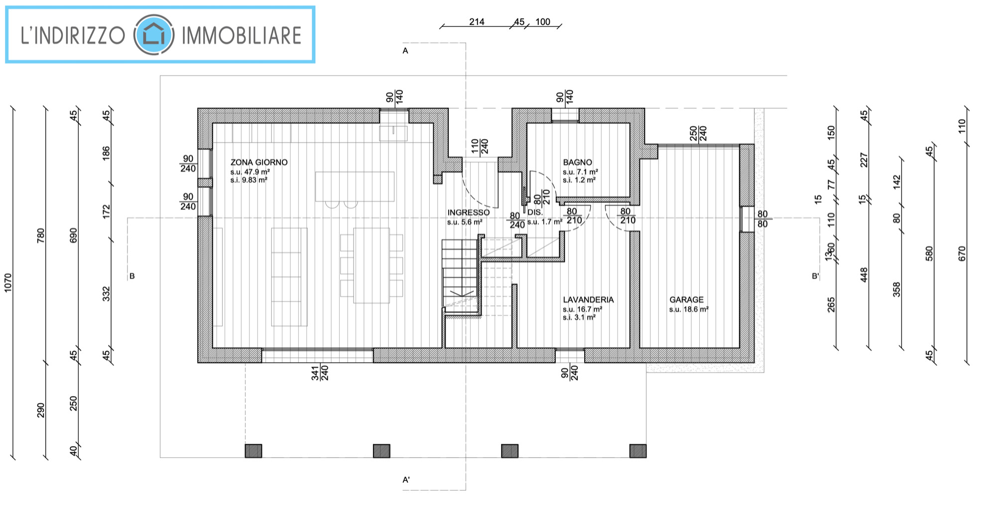
Il lotto ha un volume edificatorio pari a 569 mc edificabili, con progetto già approvato e oneri completamente pagati, pronto per iniziare la costruzione senza ulteriori spese o ritardi burocratici.
Caratteristiche principali:
Superficie lotto: 1.829 mq
Cubatura edificabile: 569 mc
Progetto approvato incluso
Oneri urbanizzazione pagati
Posizione comoda e ben collegata, vicino ai principali servizi e arterie stradali
Un’opportunità ideale per chi desidera realizzare la propria casa dei sogni senza le lunghe attese per pratiche e permessi.
Rif. T MI
€ 160.000,00
Desideri visitare l'immobile?
Contattaci per fissare un appuntamento! Tel. 041 5841449 oppure 348 7416958








